304,902 €

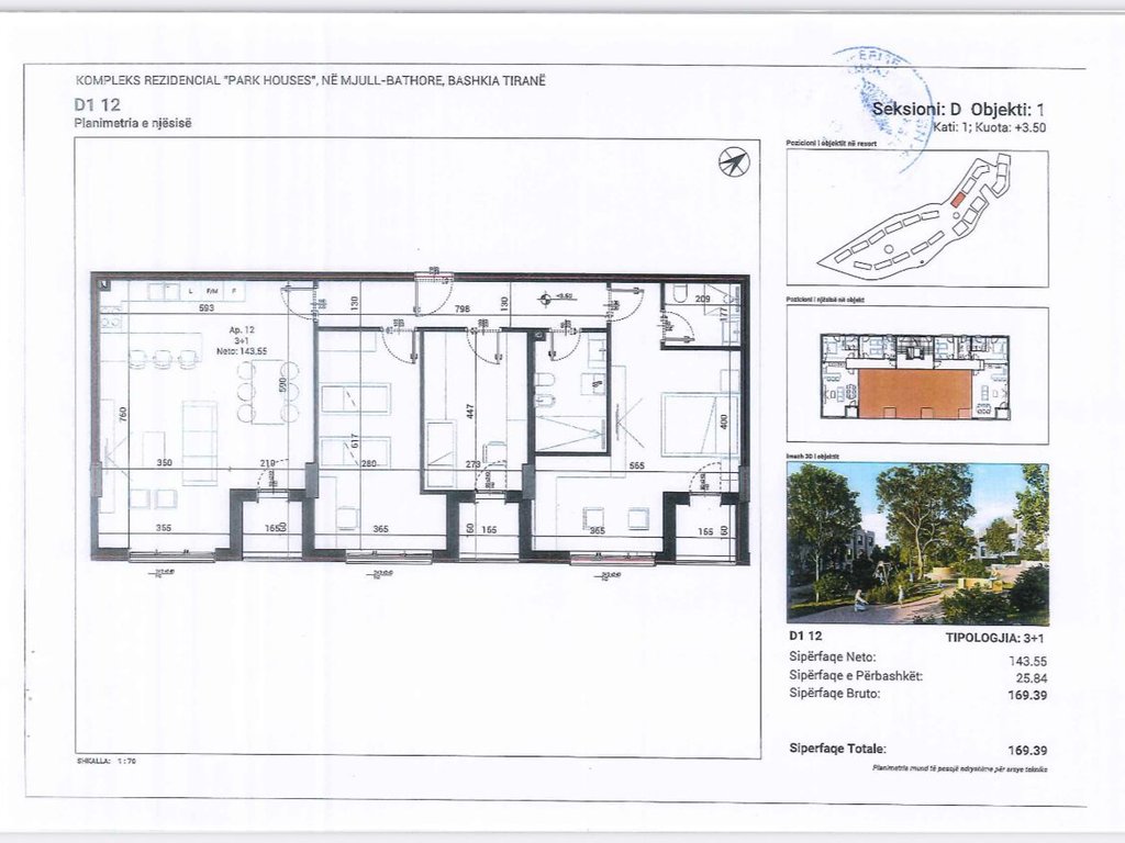
📍 Apartament 3+1+2 për shitje – Mjull Bathore, Park House

Mjull - Bathore Mjull Bathore ,Kompleksi Rezidencal "Park Houses" Tirana

Referenca: ANTIK273

📍 Apartament 3+1+2 për shitje – Mjull Bathore, Park House

✨ Sipërfaqe neto: 143.55 m²
✨ Sipërfaqe e përbashkët: 25.84 m²
✨ Sipërfaqe totale bruto: 169.39 m²
✨ Çmimi: 304,902 €

Një apartament i bollshëm dhe bashkëkohor, pjesë e kompleksit Park House, i njohur për ndërtimet cilësore, qetësinë dhe gjelbërimin përreth.
Ideale për familje që kërkojnë komfort, siguri dhe një jetesë të qetë në një nga zonat më të kërkuara të Tiranës.

Informacion
PRONA TĂ‹ NGJASHME